Berada di titik emas Cirendeu Tangerang Selatan. Sangat cocok untuk hunian pribadi untuk anda yang ingin upgrade living atau dijadikan aset sewa (Passive Income)
Dapatkan promo awal tahun, harga termasuk semi furnished dan tersedia cicilan 18 Jutaan
Pembayaran: Cash bertahap atau KPR.
Klik di SINI untuk jadwal Survey
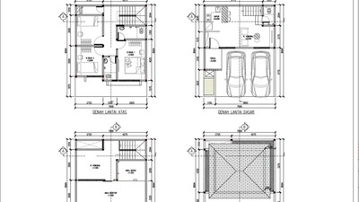
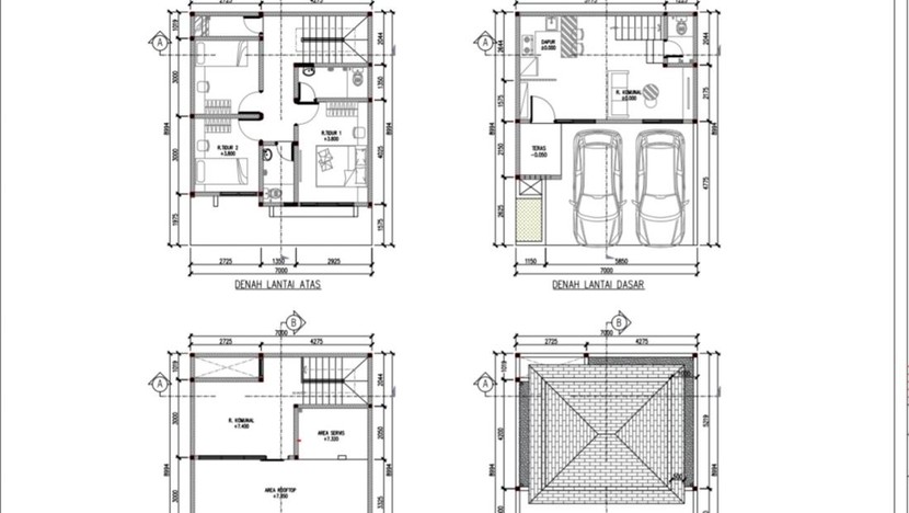
| Luas Bangunan | : 134 m2 |
| Luas Tanah | : 90 m2 |
| Kamar Tidur | : 3+1 |
| Kamar Mandi | : 2+1 |
| Lantai | : 3 |
| Fasilitas | - Transportasi: Stasiun MRT Lebak Bulus (3,3 km) - Belanja: Poins Mall (3,2 km), Citos (5,4 km), PIM 1 (6,3 km) - Perkantoran: Kawasan TB Simatupang (±4 km) - Kesehatan: Mayapada Hospital (3,8 km), RS Pondok Indah (4,0 km) - Pendidikan: Kampus UMJ (Hanya 140 m), UIN Syarif Hidayatullah (5,4 km) |
| Sertifikat | : SHM |
| Kontak | : Adi (+62 838-8000-795) |
| Lokasi | : https://maps.app.goo.gl/qRPQbdsaFkCLqRZo8 |











































