Ed Sheeran dikabarkan telah membeli dua pondok di tepi pantai kawasan Suffolk, Inggris. Bukannya mendapat sambutan hangat, penyanyi lagu berjudul "Shape Of You" itu justru dapat omelan dari tetangga.
Ed Sheeran sendiri sengaja membeli dua pondok sekaligus untuk digabungkan dan menjadi satu bangunan besar. Nah niatnya itulah yang membuat tetangganya geram.
Dilansir dari Daily Mail, Kamis (13/11/2025), Ed Sheeran yang kini berusia 34 tahun telah merogoh kocek sebesar Β£1,95 juta atau sekitar Rp 42,8 miliar (kurs Rp 21.950) untuk membeli dua unit rumah abad ke-19. Dua rumah yang memiliki masing-masing tiga kamar tidur itu berada di zona konservasi ketat di sepanjang garis pantai Suffolk. Wilayah itu belakangan ini menjadi salah satu kawasan pesisir paling diminati di kalangan elit Inggris karena pesonanya yang tenang dan nilai sejarah arsitekturnya yang tinggi.
SCROLL TO CONTINUE WITH CONTENT
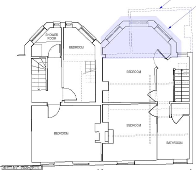
Setelah pembelian dua rumah itu, Sheeran mengajukan permohonan resmi ke Dewan East Suffolk. Permohonan yang diajukan, bertujuan untuk menggabungkan dua bangunan bersebelahan menjadi satu hunian besar dengan empat kamar tidur. Ia berencana merobohkan dinding pemisah di antara kedua rumah lama itu untuk membuat ruang keluarga yang luas, dapur bergaya terbuka, serta area relaksasi dengan pemandangan laut secara langsung.
Ed Sheeran beli 2 pondok tepi pantai Foto: Dok. Chris White via Dailymail.co.uk |
Namun, rencana baiknya itu justru menimbulkan reaksi sengit dari sebagian warga lokal. Mereka menilai proyek tersebut tidak memperhatikan situasi krisis perumahan di wilayah tersebut. Salah satu tetangga menilai bahwa menggabungkan dua rumah kecil menjadi satu rumah besar justru akan memperburuk ketersediaan hunian di wilayah itu.
"Sangat mengkhawatirkan melihat usulannya untuk mengubah dua rumah dengan 3 kamar tidur menjadi satu rumah dengan 4 kamar tidur. Permohonannya menggambarkan ia akan mengubah permanen dua properti," ujar salah satu warga, dikutip dari Daily Mail, Kamis (13/11/2025).
Warga tersebut juga mengatakan bahwa lebih dari 60 persen penduduk desa sebenarnya mendukung pembangunan rumah keluarga kecil. Daerah tersebut memiliki persentase properti kecil yang lebih rendah dibandingkan dengan rata-rata kawasan Suffolk.
Di sisi lain, Dewan Wilayah Suffolk akhirnya menyetujui permohonan tersebut, dengan alasan bahwa hilangnya satu unit hunian tidak akan berdampak besar pada keseimbangan perumahan di kawasan tersebut.
"Hilangnya satu hunian tidak akan secara material mempengaruhi kemampuan Dewan untuk meningkatkan pasokan perumahan, juga tidak akan memiliki efek yang merugikan pada pasokan perumahan di wilayah tersebut. Oleh karena itu tidak akan bertentangan dengan rencana pembangunan secara keseluruhan," ujar Dewan Wilayah Suffolk.
Sheeran tidak diwajibkan mengajukan izin perencanaan penuh, melainkan hanya perlu sertifikat pembangunan yang sah. Sertifikat ini dapat diperoleh tanpa proses izin, selama rencana pembangunan memenuhi kriteria teknis dan tata ruang tertentu.
Tak hanya sekali, di tahun sebelumnya Sheeran juga sempat mengajukan izin untuk merobohkan perluasan dua lantai di bagian belakang rumah. Ia menilai arsitekturnya dibangun dengan buruk. Izin perobohan bangunan diberikan dengan syarat bahwa penggantian bangunan harus disesuaikan dengan desain bangunan di sekitarnya agar tidak mengganggu tampilan kawasan konservasi.
Namun, sebagian dewan setempat tetap keberatan dengan keputusan itu, terutama terkait privasi tetangga yang terganggu akibat posisi jendela barunya yang menghadap ke bangunan lain. Sebagai bentuk kompromi, Dewan wilayah Suffolk memberi syarat agar jendela tersebut dibuat setengah atau sepenuhnya buram.
Ed Sheeran beli 2 pondok tepi pantai Foto: Dok. Chris White via Dailymail.co.uk |
Bagi Sheeran, proyek ini menjadi bagian dari portofolio propertinya yang terus berkembang pesat. Pondok di Suffolk ini akan menjadi hunian keduanya di Suffolk, selain hunian megah yang terkenal dengan sebutan "Sheeranville". Di hunian pertamanya terdapat pub pribadi, rumah pohon, kolam renang, bioskop bawah tanah, dan studio musik yang lengkap.
Menurut laporan Daily Mail, penyanyi terkenal ini diperkirakan memiliki sekitar 27 properti di Inggris dengan total nilai mencapai Β£70 juta atau sekitar Rp 1,5 triliun. Beberapa koleksinya mencakup apartemen di Covent Garden, tiga rumah di Chiswick, serta pondok nelayan di Dungeness.
Sheeran belakangan juga diketahui tengah memperluas investasinya ke Amerika Serikat, dengan pembelian rumah mewah senilai Β£9 juta atau sekitar Rp 197 miliar di New York. Ia bahkan sempat mengungkapkan bahwa dirinya dan sang istri, Cherry Seaborn, berencana untuk berpindah sementara ke AS selama tur konsernya berlangsung.
Perencanaan Sheeran untuk menyatukan dua pondok bersejarah itu masih menjadi topik hangat yang memicu perdebatan di kalangan warga pesisir Suffolk. Mereka khawatir bangunan itu akan mengubah karakter desa yang selama ini dikenal sebagai pondok bersejarah yang kecil dan seragam. Warga juga khawatir desa tersebut akan dimonopoli oleh rumah besar milik selebritas.
(das/das)












































